“ 济南市自然资源与规划局获悉,今日济南市公布了济南市茂岭山西片区、济南市茂岭山东片区、济南市华山北片区3个片和济南市平安片区19、20等4 ”
济南市自然资源与规划局获悉,今日济南市公布了济南市茂岭山西片区、济南市茂岭山东片区、济南市华山北片区3个片和济南市平安片区19、20等4个街区的控制性详细规划。同时,济南市英雄山片区详细规划有局部调整。
济南市茂岭山西片区

茂岭山西片区规划范围北至工业南路,南至经十路,东至茂陵山路—浆水泉路,西至二环东路,总用地面积约216.86公顷,其中建设用地面积约182.71公顷,占总用地的84.25%,非建设用地约34.15公顷,占总用地的15.75%。
该片区主导功能是中央商务区核心区的产业延伸、功能完善和配套支撑区域,以金融科技、公共文化、生活居住及配套服务等功能为主导,是中央商务区西片区的组成部分。
济南市茂岭山东片区

茂岭山东片区规划范围北至工业南路,南至经十路,东至奥体中路—大辛河,西至茂陵山路—浆水泉路,总用地面积约654.25公顷,其中建设用地面积约618.57公顷,占总用地的94.55%,非建设用地约35.68公顷,占总用地的5.45%。
该片区主导功能是以“两核”—新总部经济和金融+、“一芯”—三创产业、“一辅”—现代商务服务业为主导,完善产业延伸、公共文化、综合配套服务的中央商务区。
济南市华山北片区

华山北片区西、北至黄河水体,东至《济南市城市总体规划(2011-2020年)》确定的中心城用地边界,南至济青高速路与二环北路,城乡用地总面积1146.94公顷,其中建设用地面积459.43公顷,占总用地的40.06%;非建设用地687.51公顷,占总用地的59.94%。
该片区主导功能是对接新旧动能转换战略,聚焦携河高品质发展和生态保护规划,立足产城融合,打造新旧动能转换先导协作基地、携河北跨创新服务生态门户。
济南市平安片区19、20街区

平安片区19、20街区位于济南市长清区平安片区中部,北至平安南路,南至通发大道,东至凤凰山路和文科东西路,西至玉皇山路,总用地面积约162.38公顷。以横二路为界,北侧为19街区,用地面积约71.04公顷;南侧为20街区,用地面积约91.34公顷。
济南市莱芜区嘶马河以北片区01、02街区

莱芜区嘶马河以北片区01、02街区整体位于辛泰铁路以北,龙马河以南,西内环路以西,总用地规模约194.68公顷。以莱城大道和振兴路为界,西侧为01街区,用地规模约90.98公顷;东侧为02街区,用地规模约103.70公顷。
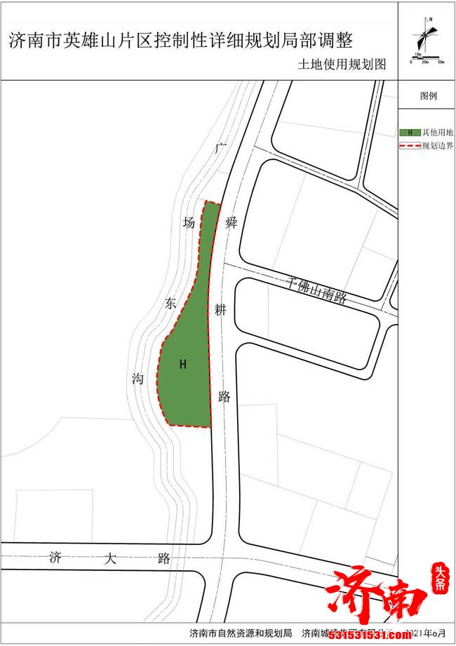
济南市英雄山片区

英雄山片区西至阳光新路,东至舜耕路,北至经十路,南至二七新村南路-济大路,总用地面积约711.90公顷。片区控规成果于2016年经市政府审批并公布。
英雄山片区控制性详细规划局部调整地块位于舜耕路以西、广场东沟以东、济大路以北、马鞍山路以南区域,用地面积约2.44公顷。因安防需求,将该地块用地性质由公园绿地调整为其他用地,调整绿地在区域内综合平衡。
Tigs: 济南市自然资源与规划局 / 茂岭山西片区 / 华山北片区 / 茂岭山东片区