“ 济南市自然资源和规划局在网上先后公布了济南七里河路西片区X地块小学建设工程规划许可批前公示和幼儿园建设工程规划许可批前公示。根据公 ”
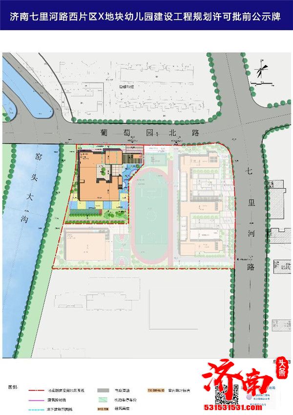
济南市自然资源和规划局在网上先后公布了济南七里河路西片区X地块小学建设工程规划许可批前公示和幼儿园建设工程规划许可批前公示。根据公示,该片区将添一所18班的小学和一所9班的幼儿园,将在一定程度上填补该区域内教育资源的空白,备受家长关注。
该地块小学项目位于历城区七里河路以西、窑头大沟以东,建设单位为济南市历城区教育和体育局。该小学项目占地面积13718.5平方米,规划总建筑面积10408.93平方米,其中地上建筑面积8091.96平方米,地下建筑面积2316.97平方米。
值得关注的是,小学项目主要建设教学综合楼、风雨操场,同步实施室外活动场地、道路、绿化等建设。项目建成后可达到18个教学班、师生850人的规模。
备受关注的幼儿园项目和小学项目相邻,规划班级为9个班,该幼儿园项目建设用地为4292.5平方米,总建筑面积4530.6平方米,地上建筑面积4366.58平方米,绿地率15.5%,建筑密度为35%,设置机动车停车位7个。招标文件显示,该项目计划工期580天。



