“ 13日,济南市自然资源和规划局又公示了一批学校的最新规划。01 雪山片区X-02地块12班幼儿园地址:历城区韩仓河以东,绕城高速以西的雪山片 ”
13日,济南市自然资源和规划局又公示了一批学校的最新规划。
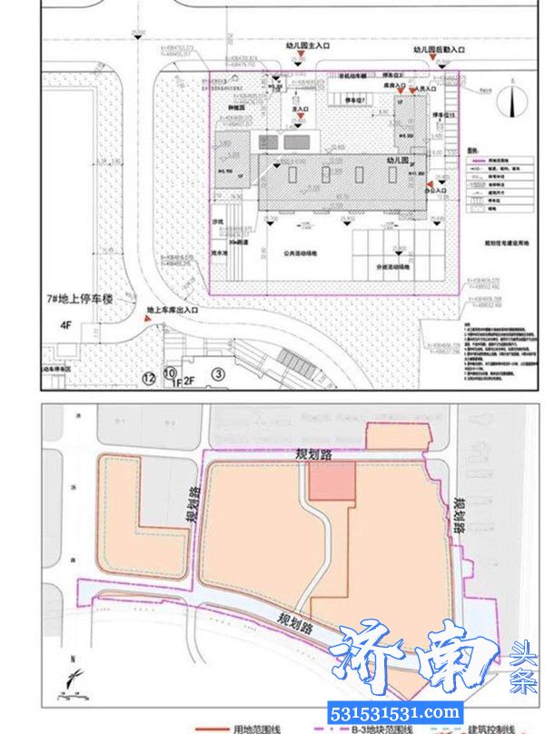
01.雪山片区X-02地块12班幼儿园地址:历城区韩仓河以东,绕城高速以西的雪山片区X-02地块

该幼儿园建设单位为历城区教育和体育局,项目规划为12班幼儿园。用地面积为8450平方米,用地性质为教育用地,建设工程使用功能为幼托,总建筑面积约7163平方米,地上建筑面积约为6556平方米,地上容积率为0.78,建筑密度为32%,绿化率为30%,设置机动车车位4个。
02.春秀路18班幼儿园、48班小学地址:科创路西侧、春秀路东侧、世纪大道南侧

春秀路幼儿园用地单位为高新技术产业开发区管委会社会事务局,用地位置位于科创路西侧、春秀路东侧、世纪大道南侧,春秀路幼儿园为18班制,拟用地面积为1.24公顷。

春秀路小学和幼儿园相邻,用地性质为中小学(48班小学),拟用地面积5.3公顷。
03.北湖核心区东侧X-2地块48班小学地址:天桥区北湖片区,天桥区标山南路以南、七一路以西,东侧为A-2地块

该项目用地单位为济南市天桥区教育和体育局,项目规划建设用地面积约2.7公顷,规划用地性质为小学用地(48班),地上容积率不大于0.9,地下容积率不大于0.2。
04.泺口一期东地块12班幼儿园
地址:天桥区济泺路以东、马家庄南路以北

该项目用地单位为济南市天桥区教育和体育局,总建筑面积约为5036平方米。学生数为360人,班数为12班。
项目用地面积8508平方米,地上建筑面积约为5036平方米,其中幼儿园为4999.77平方米,建筑密度为26%,容积率为0.6,绿化率为30%,设置机动车通车位25个。
05.药山西片区X地块24班小学地址:天桥区药山西片区,北至美里路,东至药山西路

该项目用地单位为济南市天桥区教育和体育局,用地性质为24班小学,建筑面积约1.4万平方米,规划用地面积约3.03公顷。